VILLA GIUSTINIANI BARBARIGO
Spinea VE
Pubblico
Restauro conservativo di Villa Barbarigo Pisani Diodà con relative pertinenze.
2002
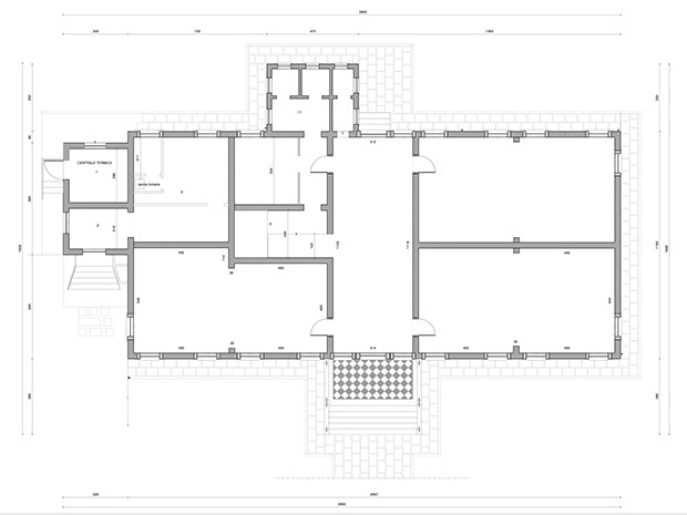
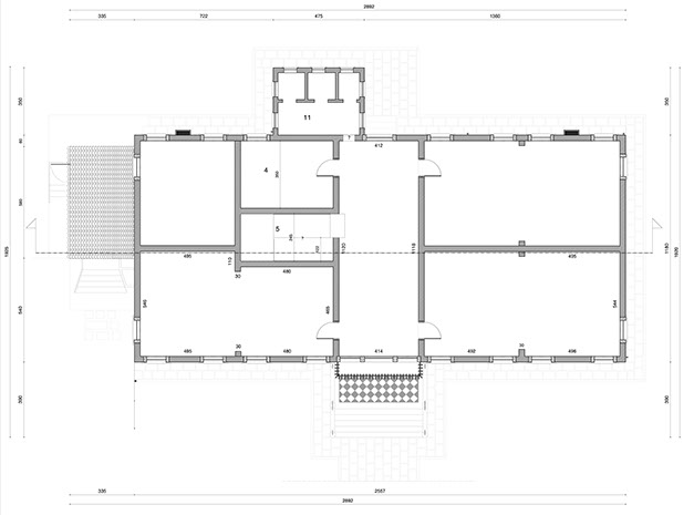
PRIMA DELL'INTERVENTO5
PRIMA DELL'INTERVENTO6
PRIMA DELL'INTERVENTO3
PRIMA DELL'INTERVENTO4
<
>
Progetto preliminare.