TONEROPROGETTI ARCHITETTOFILIPPOTONERO
PROGETTAZIONE ARCHITETTONICA INTEGRATA

PALAZZINE AURORA

Udine UD

Privato / Ed. Convenzionata

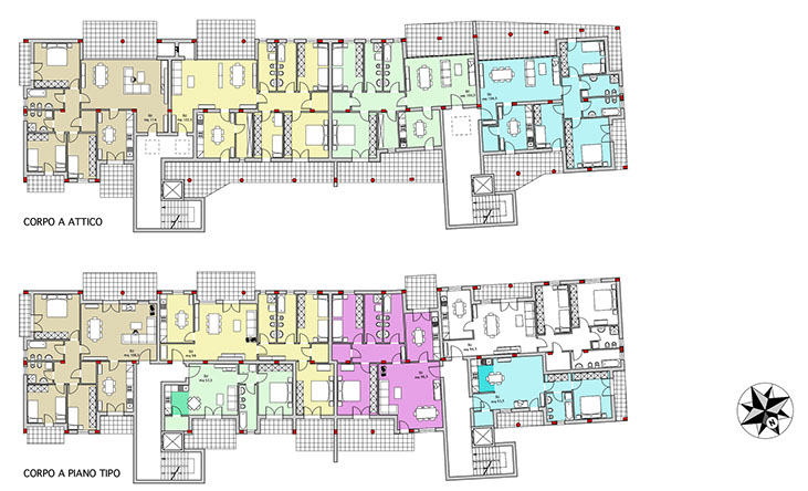
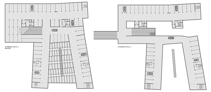
Concorso di progettazione per la realizzazione di un nuovo complesso residenziale con autorimessa interrata.

2003 (non realizzato)