TONEROPROGETTI ARCHITETTOFILIPPOTONERO
PROGETTAZIONE ARCHITETTONICA INTEGRATA

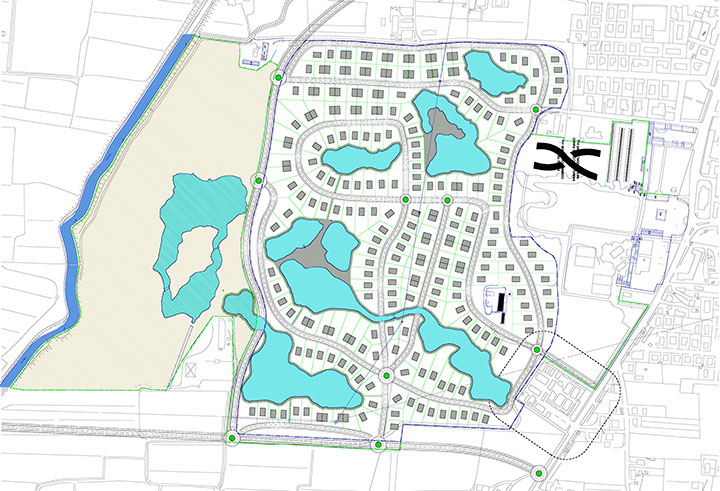
CA' DELLA NAVE

Martellago VE

Progettazione di Piano Particolareggiato avente oggetto un nuovo intervento residenziale e commerciale nell'area del Golf Club "Cà della Nave".

Privato

2006 (non realizzato)

 

Studio di fattibilità.