TONEROPROGETTI ARCHITETTOFILIPPOTONERO
PROGETTAZIONE ARCHITETTONICA INTEGRATA

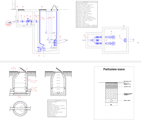
INFRASTRUTTURA FOGNARIA

Pramaggiore VE

Pubblico

Completamento di alcune tratte della rete fognaria.

2004 - 2006

 

Progetto definitivo ed esecutivo (A.T.P.), coordinamento sicurezza in fase di progettazione ed esecuzione.