TONEROPROGETTI ARCHITETTOFILIPPOTONERO
PROGETTAZIONE ARCHITETTONICA INTEGRATA

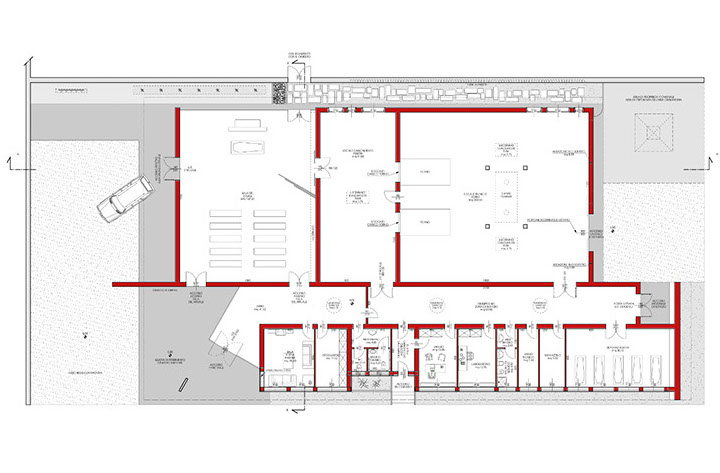
ARA CREMATORIA

Spinea VE

Privato

Realizzazione di un'ara crematoria presso il cimitero di Spinea.

2001 - 2003

 

Progetto preliminare, definitivo ed esecutivo, direzione e contabilità lavori.