TONEROPROGETTI ARCHITETTOFILIPPOTONERO
PROGETTAZIONE ARCHITETTONICA INTEGRATA

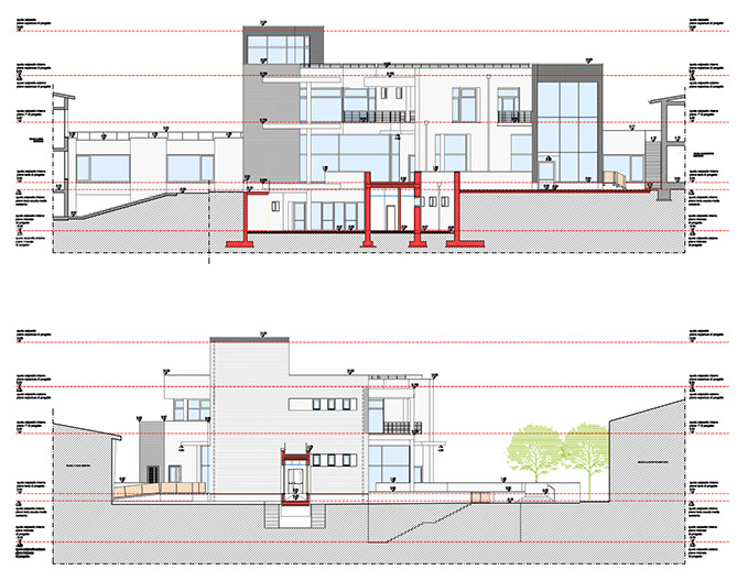
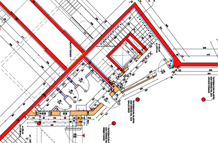
SCUOLA ELEMENTARE E MEDIA DI ISTRANA

Istrana TV

Pubblico

Lavori di ampliamento scuola elementare e media.

2008 - 2009

 

Progetto definitivo ed esecutivo (A.T.P.). Coordinamento sicurezza in fase di progettazione.