TONEROPROGETTI ARCHITETTOFILIPPOTONERO
PROGETTAZIONE ARCHITETTONICA INTEGRATA

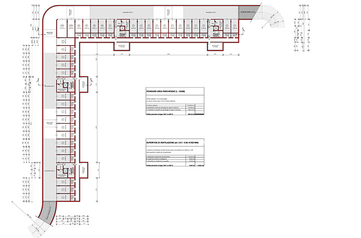
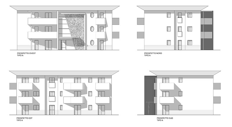
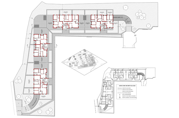
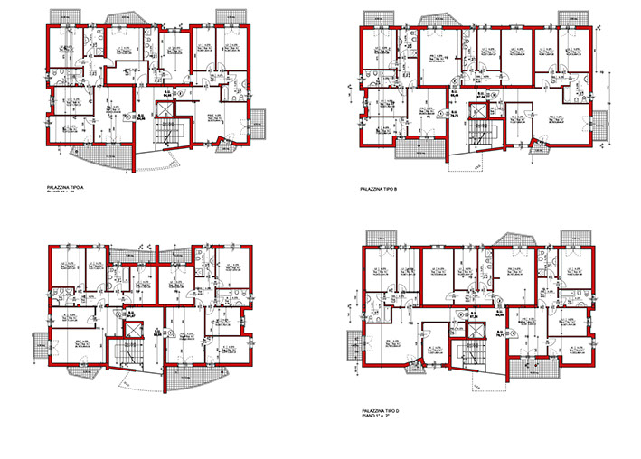
PALAZZINE SARMAR

Spinea VE

Privato / Ed. Agevolata

Lavori di costruzione di quattro palazzine residenziali con autorimessa interrata.

2000 - 2003

 

Progetto definitivo ed esecutivo, direzione artistica.