TONEROPROGETTI ARCHITETTOFILIPPOTONERO
PROGETTAZIONE ARCHITETTONICA INTEGRATA

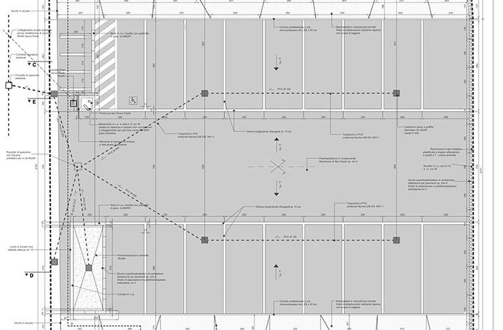
PIAZZA SANTA CATERINA

Cordovado PN

Pubblico

Lavori di arredo urbano e riqualificazione di Piazza Santa Caterina con parcheggio pertinenziale.

2005 - 2011

 

Progetto preliminare, definitivo ed esecutivo, direzioni lavori, coordinamento  sicurezza in fase di progettazione ed esecuzione. Contabilità lavori.