HOME
CHI SIAMO
SERVIZI
PROGETTI SELEZIONATI
CONTATTI
BROCHURE
RITORNA A: TUTTI
PRECEDENTE
SUCCESSIVO
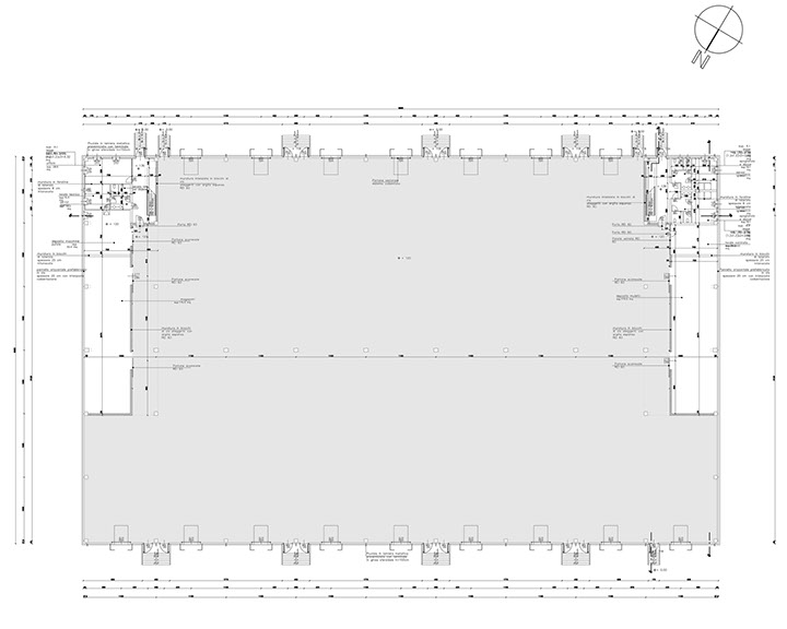
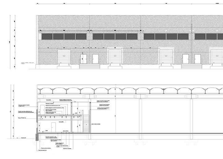
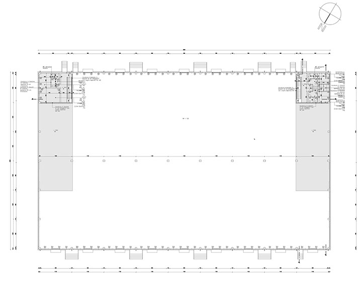
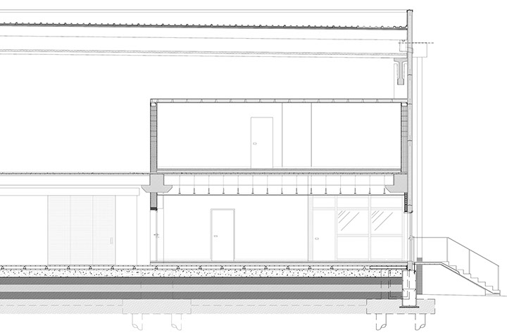
MAGAZZINI DI LOGISTICA
Rovigo RO
Privato
Realizzazione di un magazzino di logistica presso Interporto di Rovigo.
2004 - 2005
<
>
Progetto esecutivo.
© 2016 TONERO PROGETTI - arch Filippo Tonero - P.iva: 03822580274 - Viale Trieste, 39 - 30026 Portogruaro VE - ITALIA - tel / fax: +39 0421.277784 - mail: info@toneroprogetti.it
Cookies & Privacy Policy