TONEROPROGETTI ARCHITETTOFILIPPOTONERO
PROGETTAZIONE ARCHITETTONICA INTEGRATA

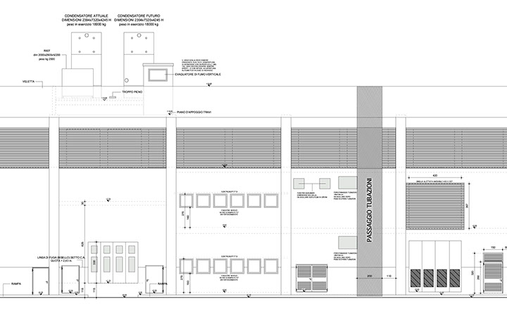
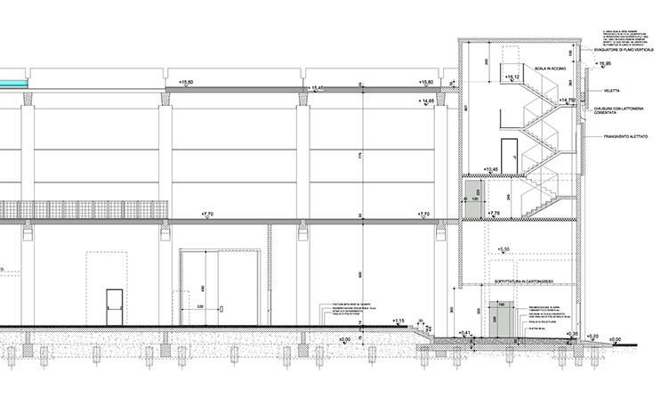
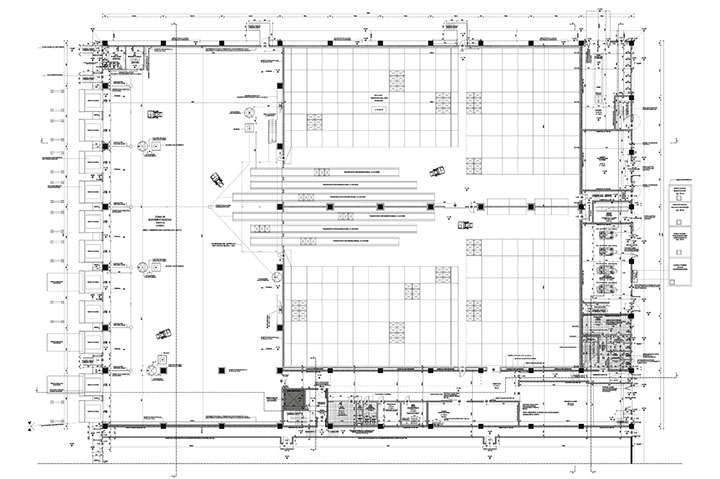
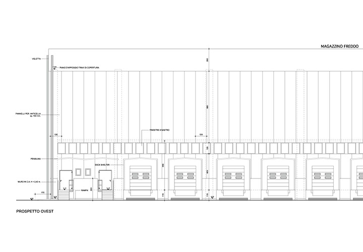
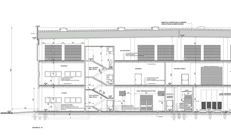
MAGAZZINI DEL FREDDO

Mestre VE

Privato

Realizzazione di un edificio industriale presso Interporto di Venezia località Mestre.

2004 - 2005

 

Service di progettazione per la redazione del progetto esecutivo.