TONEROPROGETTI ARCHITETTOFILIPPOTONERO
PROGETTAZIONE ARCHITETTONICA INTEGRATA

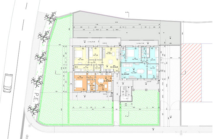
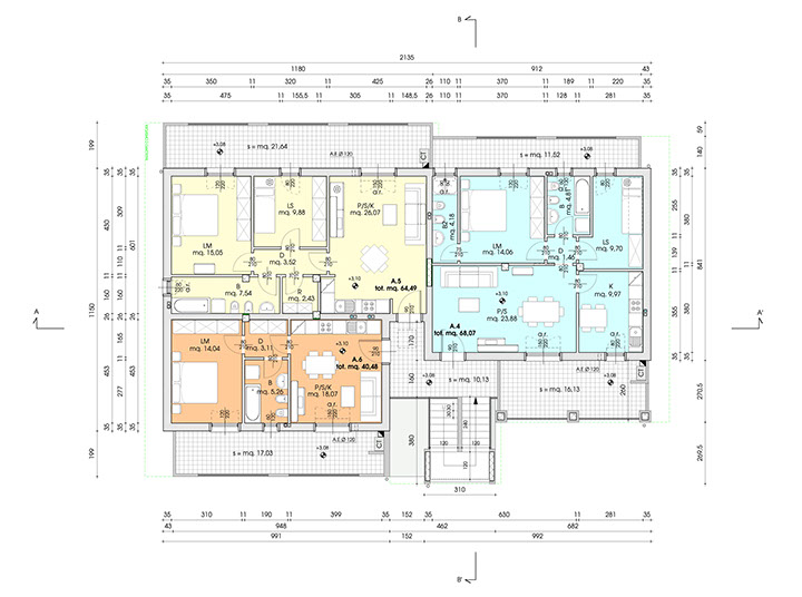
PALAZZINA TLM

Pavia di Udine UD

Privato

Realizzazione di una palazzina residenziale con autorimessa interrata.

2004 - 2007

 

Progetto definitivo ed esecutivo, direzione lavori.