TONEROPROGETTI ARCHITETTOFILIPPOTONERO
PROGETTAZIONE ARCHITETTONICA INTEGRATA

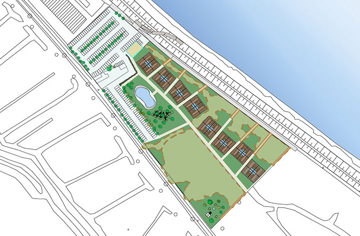
ECO-VILLAGE MARINA

Porto Viro RO

Privato

Realizzazione di insediamento residenziale all'interno di nuovo porto turistico.

In corso

 

Concept, progetto definitivo ed esecutivo, direzione lavori.