TONEROPROGETTI ARCHITETTOFILIPPOTONERO
PROGETTAZIONE ARCHITETTONICA INTEGRATA

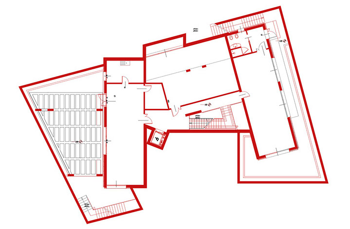
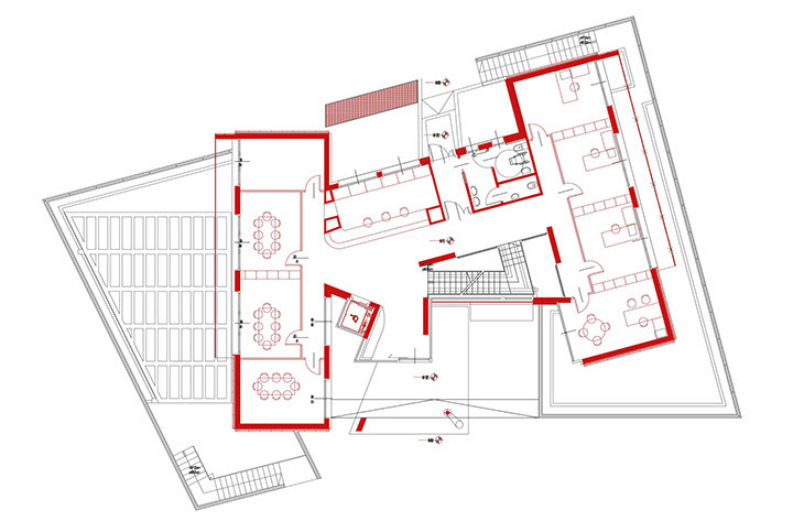
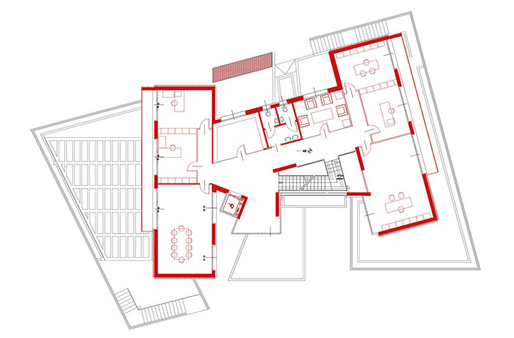
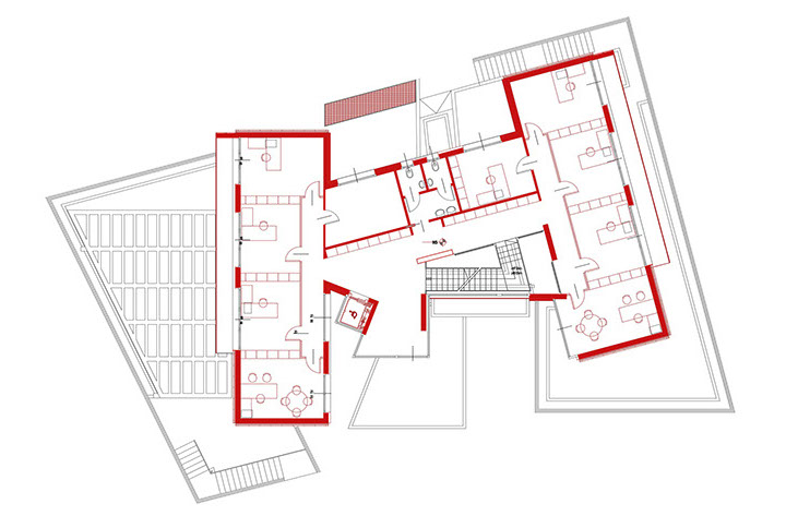
PALAZZINA DIREZIONALE

Cinto Caomaggiore VE

Privato

Progettazione di nuova sede Impresa Edile.

2008 (non realizzato)

 

Progetto definitivo ed esecutivo (A.T.P).