TONEROPROGETTI ARCHITETTOFILIPPOTONERO
PROGETTAZIONE ARCHITETTONICA INTEGRATA

BORGO FORNASARIG

Manzano UD

Privato

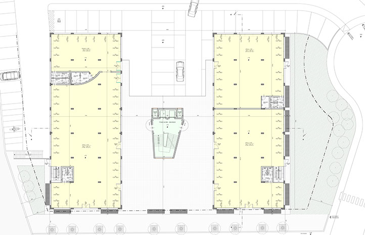
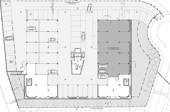
Progettazione di due palazzine commerciali/direzionali e residenziali con autorimessa interrata e parcheggio esterno.

2003  (non realizzato)

 

Progetto definitivo ed esecutivo.