TONEROPROGETTI ARCHITETTOFILIPPOTONERO
PROGETTAZIONE ARCHITETTONICA INTEGRATA

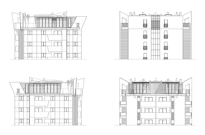
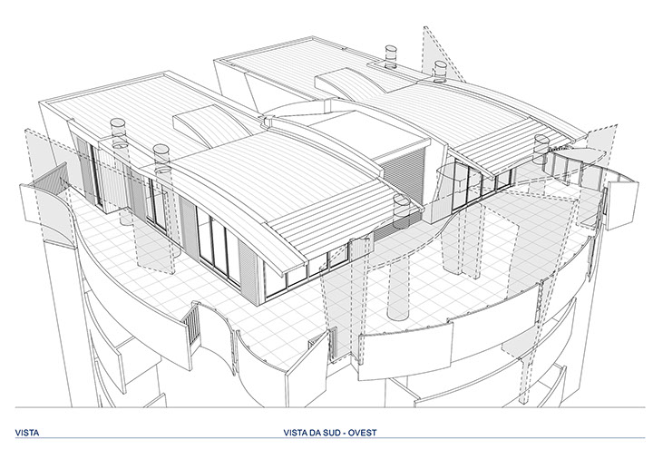
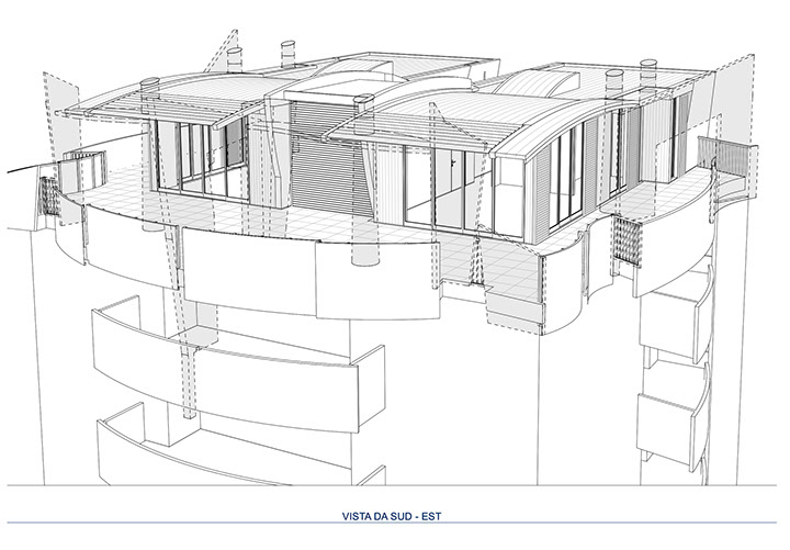
SOPRAELEVAZIONE TORRE DI NOE

Bibione VE

Privato

Sopraelevazione di un edificio denominato torre di Nòe per la realizzazione di servizi alle residenze.

2008 - 2012

 

Progetto definitivo ed esecutivo. Direzione lavori.