TONEROPROGETTI ARCHITETTOFILIPPOTONERO
PROGETTAZIONE ARCHITETTONICA INTEGRATA

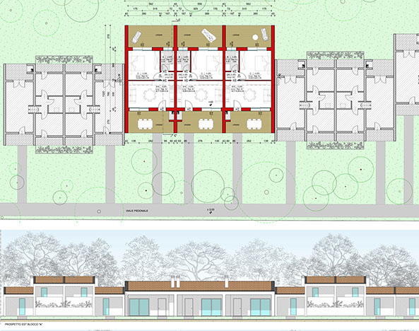
VILLAGGIO PARADISO

Bibione VE

Privato

Ampliamento Villaggio Turistico Paradiso.

2011 (non realizzato)

 

Progetto definitivo ed esecutivo, coordinamento sicurezza in fase di progettazione.