HOME
CHI SIAMO
SERVIZI
PROGETTI SELEZIONATI
CONTATTI
BROCHURE
RITORNA A: SICUREZZA CANTIERI
PRECEDENTE
SUCCESSIVO
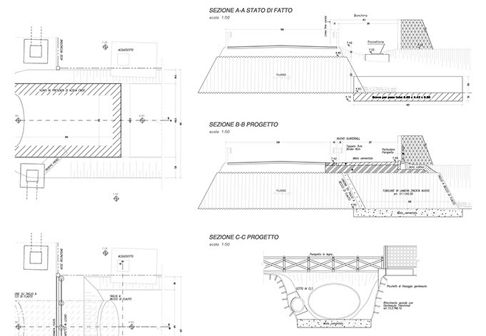
PISTA CICLABILE
Pramaggiore VE
Pubblico
Realizzazione di una pista ciclabile.
2005 - 2006
<
>
Coordinamento sicurezza in fase di progettazione ed esecuzione.
© 2016 TONERO PROGETTI - arch Filippo Tonero - P.iva: 03822580274 - Viale Trieste, 39 - 30026 Portogruaro VE - ITALIA - tel / fax: +39 0421.277784 - mail: info@toneroprogetti.it
Cookies & Privacy Policy