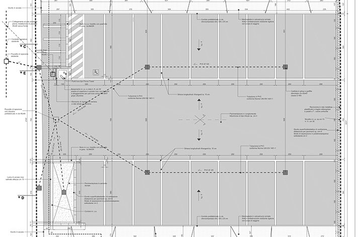
PIAZZA SANTA CATERINA
Cordovado PN
Pubblico
Lavori di arredo urbano e riqualificazione di Piazza Santa Caterina con parcheggio pertinenziale.
2005 - 2011
<
>
Progetto preliminare, definitivo ed esecutivo, direzioni lavori, coordinamento sicurezza in fase di progettazione ed esecuzione. Contabilità lavori.